
造型:子弹头、圆形、方形、几何、多种
收费亭材料制作和工艺:
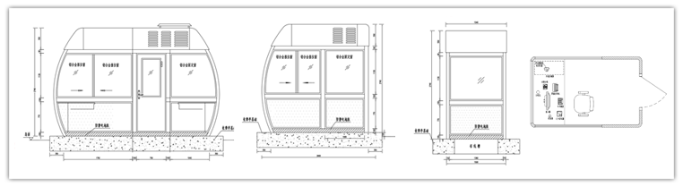
1、收费亭主立柱,采用304#不锈钢砂光板,折弯成扇形立柱,原度1.5mm,这样足够强度,对亭内收费员能起到保护作用。
2、收费亭外饰板采用304#1.2厚砂光板饰面,内饰12厘优质彩钢装饰板,颜色为象牙白,如此设计,可让亭内感觉整洁大方。
3、子弹头收费亭墙壁内用聚苯乙烯泡沫板,保温、隔热、隔音、防火、防潮,这种板强度大,有足够的支撑作用。
4、窗子采用不锈钢推拉窗,玻璃全为5厘钢化玻璃,四边用胶条密封,绝不漏水,隔音效果良好。
5、子弹头收费亭天花吊顶采用优质彩钢装饰板,颜色为象牙白,方便线路安装,维护。
6、子弹头收费亭内电路严格按照JT/T422-2000标准设计,配置:漏电保护器和空气开关。
7、工作台全为不锈钢工作台,台上配有抽屉钱箱、钱箱内设有3个钱夹和1个钱据空位,钱箱装在左侧靠边,装钱可拉出,方便、快捷
8、子弹头收费亭内地板采用符合GB6650-86标准的抗静电活动地板
9、子弹头收费亭使用环境温度:±40℃——80℃,湿度10%——90%
订货流程:
一、电话或在线QQ咨询,我们会根据您的需求,推荐合适的产品给您
二、产品细节确认---可以提供材料样品,承诺材料全部实际厚度
三、合作方式确认---双方确定产品数量、价格、交货日期、付款方式等
四、签订合同---有公司公章的正规合同,具有法律约束












